biuro@md-invest.pl
530 658 026 / 502 290 139
ul. Konwiktorska 10b, 21-400 Łuków
o firmie
inwestycje
kontakt
Kresów Wschodnich Etap V
Dostępne lokale
aktualny
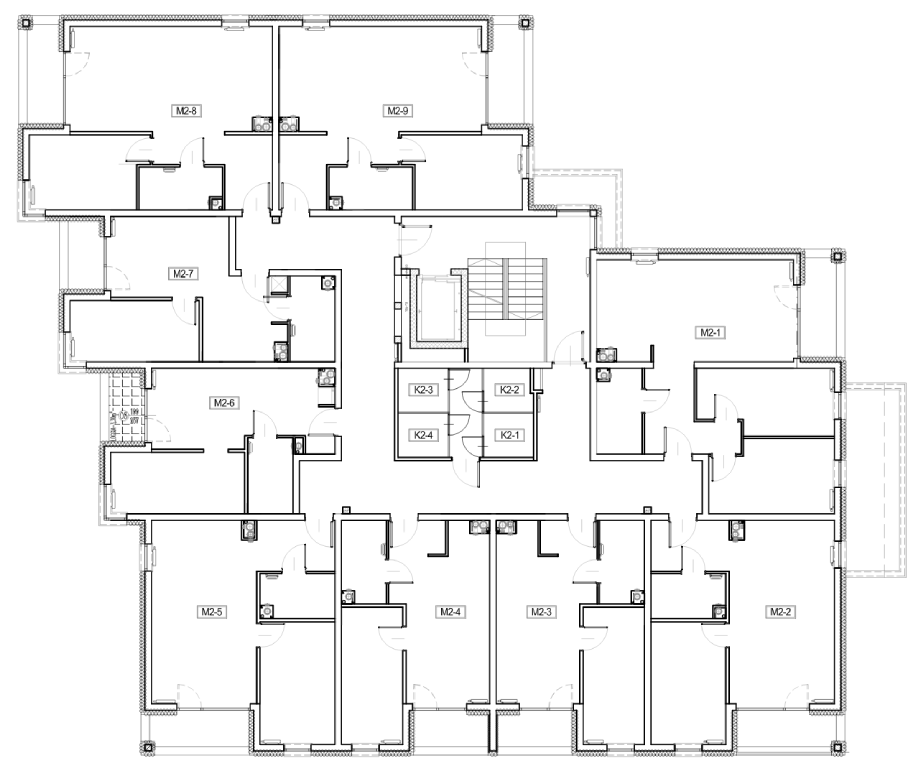
POZIOM | 2
Poziom
Zagospodarowanie
zero
1
2
3
4
5
6
Mieszkanie
M2-1
M2-2
M2-3
M2-4
M2-5
M2-6
M2-7
M2-8
M2-9
Komórki
K2-1
K2-2
K2-3
K2-4
zagospodarowanie
Ilość mieszkań
54
Piętra
6
Garaże indywidualne
4
Miejsca parkingowe w garażu podziemnym
14
Miejsca parkingowe zewnętrzne
38
lokalizacja
Ruszyła sprzedaż!
×
Kolejny etap sprzedaży mieszkań przy
ul. Kresów Wschodnich -Etap V
Wolne lokale
530 658 026